Suite 100 6165 Lehman
Available
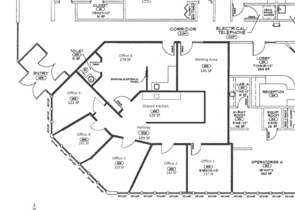
This newly renovated space provides a large waiting area, multiple 5 offices, a spacious kitchen with a granite countertop, a large back room that could be used as a conference room or a 6th office with a sink inside the room, and a private restroom.
Plenty of natural lighting with windows that open!
Main level and handicap accessibility!
Can be leased per office (turning waiting room and kitchen into shared areas) or all together as a private suite!
$13.29 PSF + $6.21 NNN (Based on 2025 Expenses) all together. If leasing individual offices – Call broker for specific office rates.
Available June 1st, 2026!
Suite Details
| Lease Rate | $2,917 / mo. |
| Lease Type | Triple net |
| Use | Office |
| Floor Area | 1,795 ft² |
Additional Photos

Waiting Area

Waiting Area Behind Reception Desk

1st Operatory

2nd Operatory

3rd Operatory

4th Operatory

Office

Private Restroom

Interior Hallway

Back Filing Room

Back Filing Room & Storage Area

Additional Area Behind Dental Areas for Equipment
