Skip to content
719.231.9556
Facebook
Twitter
Email
Menu
Home
About Us
Properties
Services
Landlords
Prospective Tenants
Property Management
Tenant References
Forms
Contact
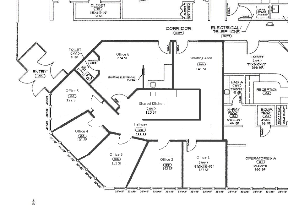
6165-100 Updated Floor Plan & SqFt Adjustments – 04-14-2026
By
Dana Stanecek
|
April 15, 2026